Ivy Creek Residence
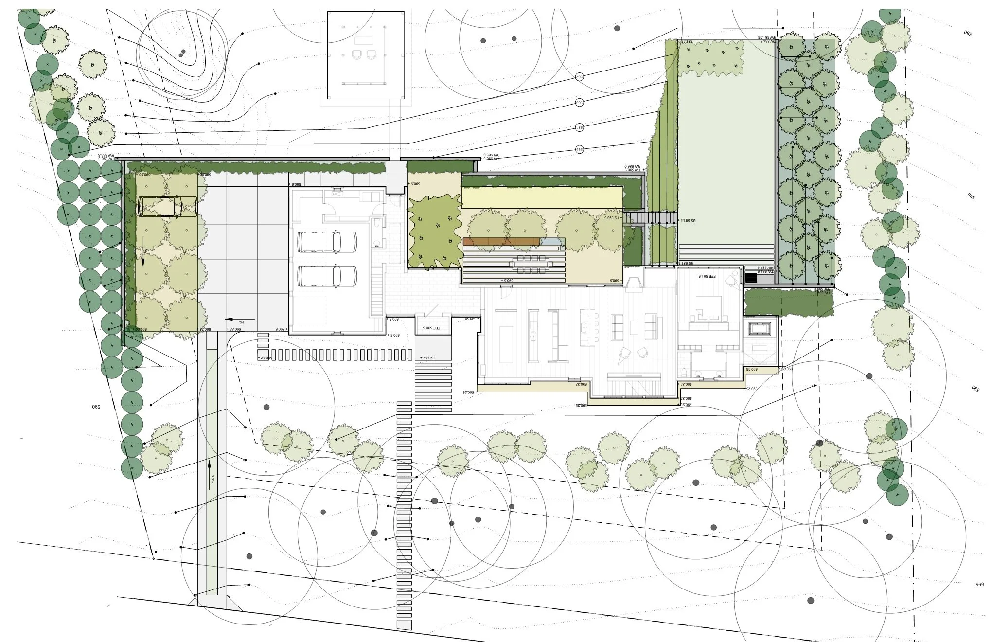
This modern southern vernacular residence was designed for a rural 3 acre site along Ivy Creek in Western Albemarle County. The land slopes 60 feet and due south from the street to the creek, so the house was oriented linearly on an east-west axis to afford maximum exposure to natural light throughout the day.
Exterior materials are a combination of white limewashed brick for the main volume of the house, wood plank rain-screen and fiber cement panel for secondary volumes, cast in place concrete for the entry pavilion, and dark slate-gray brick for the rear chimney and site walls.
Landscape Architect: Gregg Bleam Landscape Architect, Charlottesville
Design 2018 | Unbuilt